Характеристики
Расход воздуха, м3/час
—
315
По запросу
Нашли дешевле?
Под заказ
Наши менеджеры обязательно свяжутся с вами и уточнят условия заказа
Описание
Установки с EC вентиляторами, без электрического преднагревателя, со встроенной автоматикой и сенсорным пультом ДУ
| Модель | Расход воздуха, м3/ч |
Класс фильтра приточного канала |
Класс фильтра вытяжного канала |
Мощность вентилятора, кВт |
Мощность предварительного нагревателя на входе, кВт |
Напряжение, Вт | Вес, кг |
|
HRV30EC-CF-P-N-NN-74-R-P0 |
315 | F7 | G4 | 170 | - | 230 | 19,3 |
Характеристика мощности

Эффективность рекуперации

Данные были измерены при следующих условиях:
– температура наружного воздуха -5°C, относительная влажность 90%
– температура воздуха в помещении 20°C, относительная влажность 65%
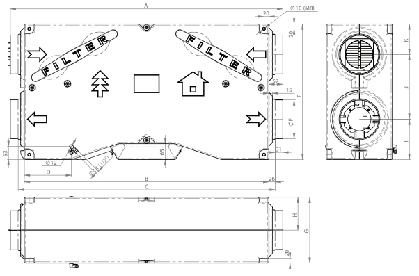
Габаритные размеры

| Тип | А | В | С | D | E | F | G | H | I | J | K |
| HRV15,HRV30 | 1114 | 1000 | 1051 | 193 | 555 | 159 | 270 | 135 | 165 | 265 | 125 |
